Okna PCV Aluplast IDEAL 4000
Ekonomiczny system okienny Aluplast Ideal 4000 doskonale nadającym się do zabudowy miejskiej oraz jednorodzinnej. Jakość i dobra cena to atuty, które sprawiły że jest jednym z najpopularniejszych systemów w swojej klasie. 5 komór termoizolacyjnych oraz dwie uszczelki przylgowe zapewniają dobrą izolacyjność cieplną. Okna dostępne są w pakietach 2-szybowym, których przestrzenie międzyszybowe wypełnione są gazem szlachetnym – Argonem. Okna dostępne są w 3 wariantach stylistycznych w szerokiej gamie kolorystycznej, z białym bądź brązowym rdzeniem.
Kolory okien PCV Aluplast
Zalety okien
- dobra jakość i trwałość
- wąska zabudowa
- niska cena
Wyposażenie standardowe
- blokada błędnego położenia klamki (okno UR)
- mikrowentylacja
- szklenie 2-szybowe
- klamki aluminiowe
Uw -,-
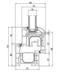
Dane techniczne
| Ilość komór | 5 |
| Uszczelka środkowa | Nie |
| Współczynnik przenikalności cieplnej profilu | Uf = -,- W/(m²K) |
| Głębokość zabudowy ramy | 70 mm |
| Klasa profilu | B |
| Izolacyjność akustyczna | do 40 db |
| Zabezpieczenie antywłamaniowe | do klasy RC2 |
| Okucia | Roto |
| Praca okuć w suchej komorze | Nie |
Masz pytania o nasze okna?
Skontaktuj się z nami telefonicznie lub napisz wiadomość. Z chęcią odpowiemy na Twoje pytania.
71 725 78 87
Wyceń okna
Zamów bezpłatną wycenę! Wystarczy, że prześlesz nam zestawienie stolarki lub wymiary otworów.
Wyślij zapytanie

