Okna PCV Schüco Si 82 – wycofane z produkcji
Zobacz: Schüco Living 82
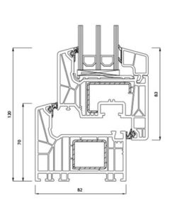
Okna PCV w systemie Schüco Si 82 to bardzo dobry wybór dla inwestora indywidualnego, któremu zależy na energooszczędnej inwestycji. Okna wyposażone są w 6 komór termoizolujących, które zapewniają bardzo dobrą izolację cieplną. Zastosowano w nich 3-płaszczyznowy system uszczelnienia chroniący przed złymi warunkami atmosferycznymi i hałasem. W pakiecie szybowym przestrzenie między szybami wypełnione są Argonem. Okucia firmy Winkhaus zapewniają funkcjonalność, bezpieczeństwo oraz wysoki komfort użytkowania.
Kolory okien Schuco
Zalety okien
- Doskonała izolacyjność cieplna
- Wysoki poziom bezpieczeństwa
- Innowacyjny system okienny
- Wysoka jakość wykonania
Wyposażenie standardowe
- blokada błędnego położenia klamki
- mikrowentylacja / stopniowany uchył
- szklenie trzyszybowe 4th/18Ar/4/18Ar/4th (Ug=0,5)
- klamka aluminiowa Schuco
- do 5 zaczepów antywyważeniowych
- wzmocnienie stalą zamkniętą
Uw = -,-
dla okna referencyjnego UR: 1230 x 1480 mm
szklenie trzyszybowe o Ug=0,5 z ciepłą ramką
Dane techniczne
| Ilość komór | 6 |
| Uszczelka środkowa | Tak |
| Współczynnik przenikalności cieplnej profilu | Uf = 1,0 /(m²K) |
| Głębokość zabudowy ramy | 82 mm |
| Klasa profilu | B |
| Izolacyjność akustyczna | do 47 db |
| Zabezpieczenie antywłamaniowe | do klasy RC2 |
| Okucia | Winkhaus |
| Praca okuć w suchej komorze | Tak |
Masz pytania o nasze okna?
Skontaktuj się z nami telefonicznie lub napisz wiadomość. Z chęcią odpowiemy na Twoje pytania.
71 725 78 87
Wyceń okna
Zamów bezpłatną wycenę! Wystarczy, że prześlesz nam zestawienie stolarki lub wymiary otworów.
Wyślij zapytanie

